0
3 Pièce(s)
2 Chambre(s)

Appartement neuf pour investir à Étaples avec Agence Centrale

Étaples (62630)
Réf : VAC N la salicorne 1-103

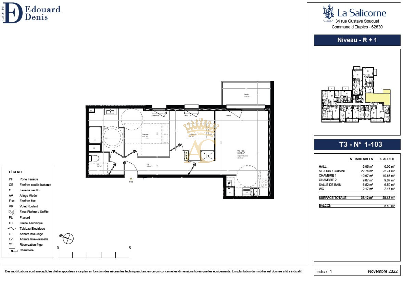
À Étaples, investissement immobilier à réaliser avec cet appartement ayant 2 chambres et une grande terrasse à vivre bien exposée. Dans un programme neuf de qualité dont la livraison est prévue pour 2025. L'appartement comporte une salle de bain, un coin salon de 22.74m², un espace cuisine et 2 chambres. Sa surface plancher intérieure habitable fait 58.12m² loi Carrez. Le double vitrage garantit la tranquillité des occupants. Est aux dernières normes imposées par la réglementation en matière de construction label BBC garantissant une forte isolation thermique. Le logement s'accompagne d'un balcon mesurant 5.35m² et une terrasse pour entretenir votre bronzage, ce qui porte la superficie à vivre à 63.47m². Il est au premier niveau ; l'ensemble immobilier dispose d'un ascenseur. Le domicile donne accès à une place de parking pour garer sa voiture. Prix de vente minimum dans cet ensemble immobilier neuf : 232 000 €. L'agence immobilière Agence Centrale se fera un plaisir de vous aider pour plus d'informations.


Les informations sur les risques auxquels ce bien est exposé sont disponibles sur le site Géorisques
Ce bien vous intéresse ?
Fieldset par défaut
Fieldset par défaut
Validation

* Champs obligatoires

Contacter l'agence
Validation
Les informations recueillies sur ce formulaire sont enregistrées dans un fichier informatisé par La Boite Immo agissant comme Sous-traitant du traitement pour la gestion de la clientèle/prospects de l'Agence / du Réseau qui reste Responsable du Traitement de vos Données personnelles. La base légale du traitement repose sur l'intérêt légitime de l'Agence / du Réseau. Elles sont conservées jusqu'à demande de suppression et sont destinées à l'Agence / au Réseau. Conformément à la loi « informatique et libertés », vous disposez des droits d’accès, de rectification, d’effacement, d’opposition, de limitation et de portabilité de vos données. Vous pouvez retirer votre consentement à tout moment en contactant directement l’Agence / Le Réseau. Consultez le site https://cnil.fr/fr pour plus d’informations sur vos droits. Si vous estimez, après avoir contacté l'Agence / le Réseau, que vos droits « Informatique et Libertés » ne sont pas respectés, vous pouvez adresser une réclamation à la CNIL. Nous vous informons de l’existence de la liste d'opposition au démarchage téléphonique « Bloctel », sur laquelle vous pouvez vous inscrire ici : https://www.bloctel.gouv.fr Dans le cadre de la protection des Données personnelles, nous vous invitons à ne pas inscrire de Données sensibles dans le champ de saisie libre.
Ce site est protégé par reCAPTCHA, les Politiques de Confidentialité et les Conditions d'Utilisation de Google s'appliquent.

En Bref

Code postal 62630
Surface habitable (m²) 58,12 m²
Surface loi Carrez (m²) 58,12 m²
Nombre de chambre(s) 2
Nombre de pièces 3
Etage 1
Ascenseur OUI
Nb de salle de bains 1
Mode de chauffage Gaz de ville
Type de chauffage TRAD_TYPE_CHAUFF_CHAUDIERE
Format de chauffage Individuel
Visiophone OUI
Balcon OUI
Terrasse NON
Cave NON
Nombre de parking 1
Exposition Ouest
Année de construction 2025

Infos financières

Prix de vente 225 000 €
Les honoraires d'agence seront intégralement à la charge du vendeur  

Energie

Energie
DPE
GES