0
2 Pièce(s)
1 Chambre(s)

Étaples : grand appartement neuf à vendre 204000 €

Étaples (62630)
Réf : VAC N la salicorne 1-210

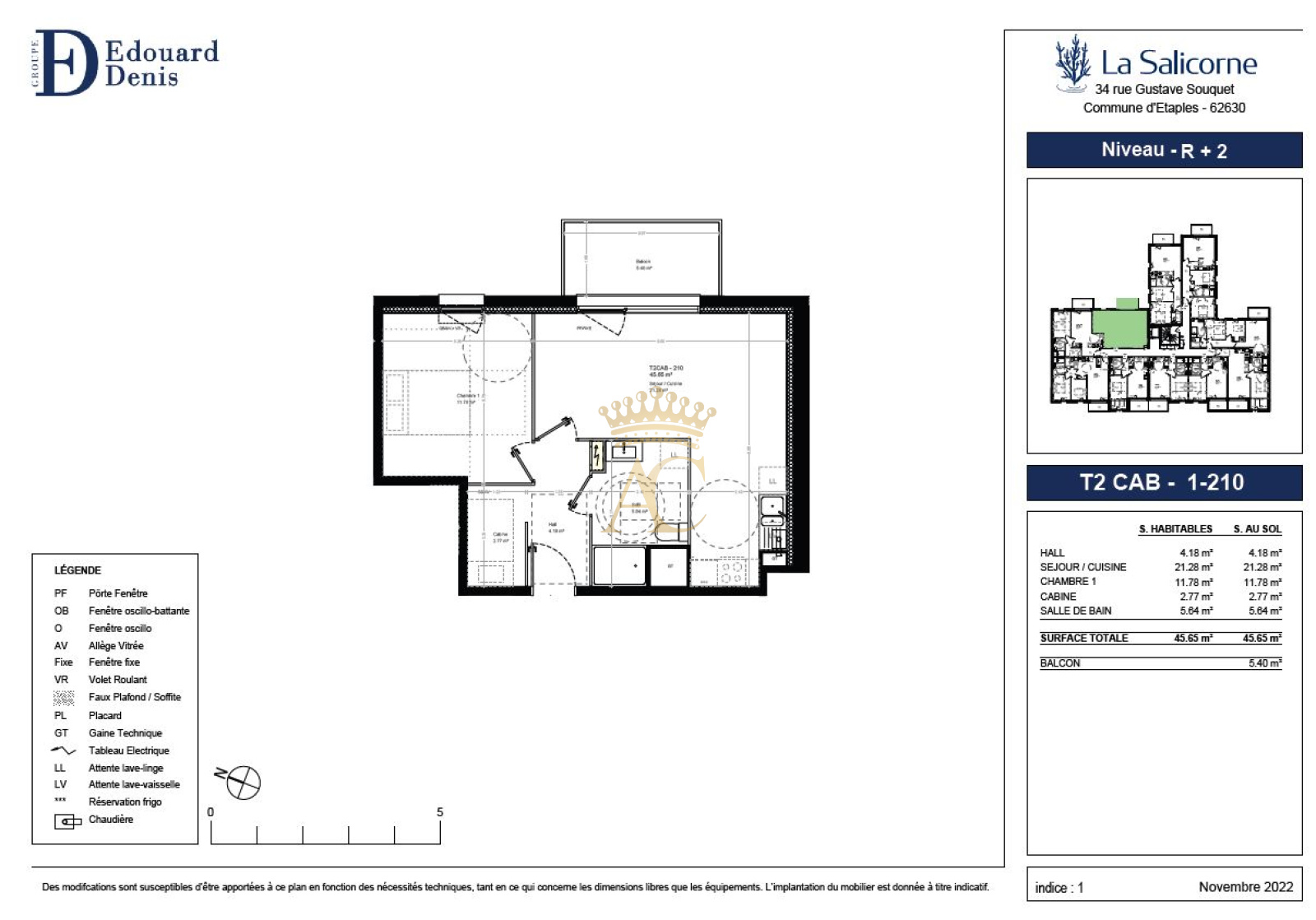
Placement immobilier de qualité avec ce bel appartement disposant d'une chambre facile à louer et idéal pour du locatif à Étaples. Dans un bel ensemble immobilier tout neuf qui sera livré en 2026. Logement intéressant dans l'optique d'une première acquisition. Pour en savoir plus ou vous faire accompagner dans votre recherche de logement, entrez rapidement en contact avec Agence Centrale. Appartement composé d'une salle de bain, une chambre, un espace cuisine et un coin salon de 21.28m². La surface intérieure habitable développe 45.65m² en loi Carrez. Des fenêtres à double vitrage garantissent le calme du lieu. Consomme peu d'énergie, ayant reçu le label de bâtiment à basse consommation qui garantit une forte isolation thermique. À l'extérieur, vous disposerez d'un charmant balcon occupant 5.40m², ce qui porte la surface à vivre à 51.05m². Domicile au premier étage dans un immeuble avec ascenseur. Il vous fait profiter d'un parking privatif. Prix :204 000 euros.


Les informations sur les risques auxquels ce bien est exposé sont disponibles sur le site Géorisques
Ce bien vous intéresse ?
Fieldset par défaut
Fieldset par défaut
Validation

* Champs obligatoires

Contacter l'agence
Validation
Les informations recueillies sur ce formulaire sont enregistrées dans un fichier informatisé par La Boite Immo agissant comme Sous-traitant du traitement pour la gestion de la clientèle/prospects de l'Agence / du Réseau qui reste Responsable du Traitement de vos Données personnelles. La base légale du traitement repose sur l'intérêt légitime de l'Agence / du Réseau. Elles sont conservées jusqu'à demande de suppression et sont destinées à l'Agence / au Réseau. Conformément à la loi « informatique et libertés », vous disposez des droits d’accès, de rectification, d’effacement, d’opposition, de limitation et de portabilité de vos données. Vous pouvez retirer votre consentement à tout moment en contactant directement l’Agence / Le Réseau. Consultez le site https://cnil.fr/fr pour plus d’informations sur vos droits. Si vous estimez, après avoir contacté l'Agence / le Réseau, que vos droits « Informatique et Libertés » ne sont pas respectés, vous pouvez adresser une réclamation à la CNIL. Nous vous informons de l’existence de la liste d'opposition au démarchage téléphonique « Bloctel », sur laquelle vous pouvez vous inscrire ici : https://www.bloctel.gouv.fr Dans le cadre de la protection des Données personnelles, nous vous invitons à ne pas inscrire de Données sensibles dans le champ de saisie libre.
Ce site est protégé par reCAPTCHA, les Politiques de Confidentialité et les Conditions d'Utilisation de Google s'appliquent.

En Bref

Code postal 62630
Surface habitable (m²) 45,65 m²
Surface loi Carrez (m²) 45,65 m²
Nombre de chambre(s) 1
Nombre de pièces 2
Etage 1
Ascenseur OUI
Nb de salle de bains 1
Mode de chauffage Gaz de ville
Type de chauffage TRAD_TYPE_CHAUFF_CHAUDIERE
Format de chauffage Individuel
Visiophone OUI
Balcon OUI
Terrasse NON
Cave NON
Nombre de parking 1
Exposition Est
Année de construction 2025

Infos financières

Prix de vente 204 000 €
Les honoraires d'agence seront intégralement à la charge du vendeur  

Energie

Energie
DPE
GES